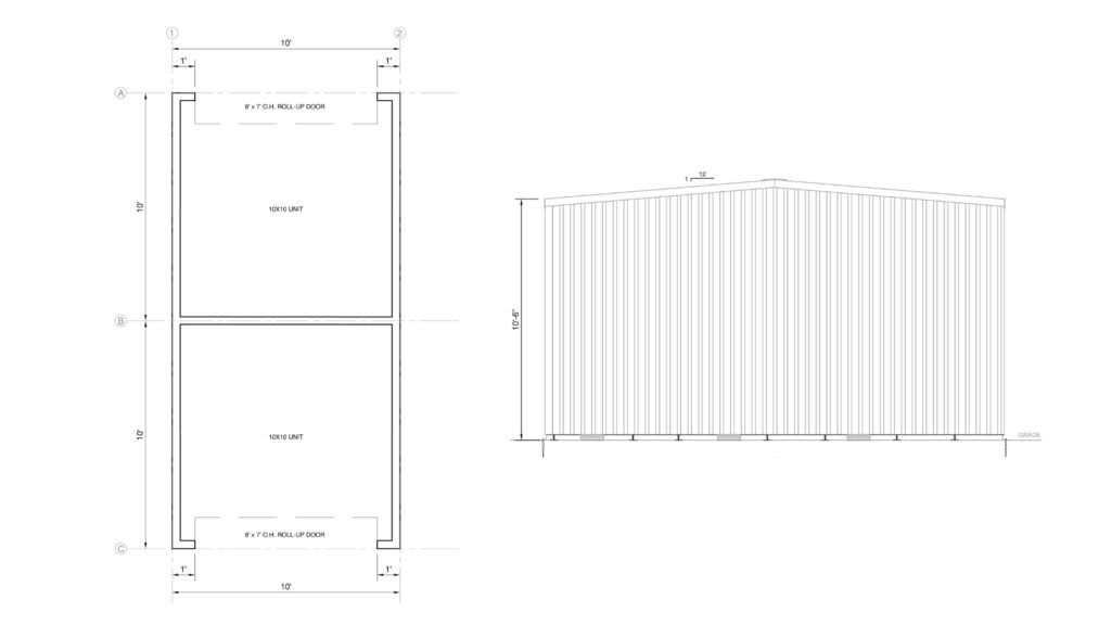
10 x 20 Units 10×20 single slant to the back Get Quote 10×20 double pitch with a 10×10 and a 10×10 Get Quote 10×20 double pitch with a 10×5 and a 10×15 Get Quote 10×20 double pitch with 2-5×10 and 4- 5×5 with doors on the gable end Get Quote